Zuverlässige Planungsgrundlage

Bestandsvermessung zur Ableitung von Grundrissen u. Ansichten

Planen und Bauen -

Grundrisse, Schnitte und Ansichten von Bestandsgebäuden

Egal ob vor, während oder nach Abschluss eines Bauprojektes: Grundrisse, Schnitte und Ansichten sind immer dabei. Ob für eine solide Planung, die Erfassung eines Zwischenstands oder als Nachweis über das Gebaute nach Abschluss des Projektes, mit uns stehen Sie immer auf der sicheren Seite.


Wann wird eine Bestandsvermessung benötigt?

Wann wird eine Bestandsvermessung benötigt?
Schnitt durch ein Gebäude

Sie haben eine Immobilie im Eigentum oder erworben und möchten diese Erweitern oder Umbaumaßnahmen durchführen?

Regelmäßig liegen nur Bauzeichnung zur Genehmigungsplanung vor. Diese haben mit der tatsächlichen Ausführung oft wenig gemeinsam. Im Bauprozess werden Raumaufteilungen und Höhen geändert, die Zeichnungen werden nicht angepasst. Die Verwendung dieser Bauzeichnungen ist riskant, im späteren Verlauf - spätestens in der Ausführung - fallen Unregelmäßigkeiten auf und verursachen Mehrkosten, da im laufenden Prozess umgeplant werden muss.


Erweiterung und Umbau

Erweiterung und Umbau
Abgeleitete Ansicht

Wir vermessen den Gebäudebestand und erstellen Ihnen aktuelle und übersichtliche Pläne mit sämtlichen benötigten Informationen über Zustand und Aufteilung der Räumlichkeiten, wahlweise inklusive fotografischer Dokumentation.

Zur effizienten Datenerfassung werden 3D-Laserscanner verwendet. Nicht zugängliche Bereiche wie Dachflächen können durch den Einsatz von Vermessungsdrohnen abgebildet werden. Bei gleichzeitiger Verwendung unterschiedlicher Sensoren wird durch eine geeignete Auswertung berücksichtigt, dass alle Daten in einem Koordinaten - und Höhensystem vorliegen.


Ergebnis: Plansatz Ist-Zustand

Ergebnis: Plansatz Ist-Zustand
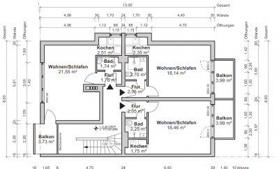
Grundriss eines Mehrfamilienwohnhauses

Die abgeleiteten Pläne - Grundrisse, Schnitte und Ansichten - können Sie direkt zu einem Architekten, einer  Architektin oder sonstigen Fachplanern geben, sodass dem weiteren Planungsprozess nichts mehr im Wege steht.

Einer fotografischen Dokumentation können Sie Informationen über den aktuellen Zustand des Baukörpers entnehmen und so weitere notwendige Schritte einleiten. So können mehrere Arbeitsprozesse parallel angestoßen werden: Die Planung des Neu-/An- oder Umbaus kann begonnen werden, während zeitgleich neue Ideen für die Raumgestaltung und Anordnung des Bestandsgebäudes entstehen.


Technische Gebäudeausrüstung

Technische Gebäudeausrüstung
Rohre und Leitungen in verschiedenen Ebenen

Auch die technische Gebäudeausrüstung (TGA) ist regelmäßig mangelhaft dokumentiert. Grundlage für eine effiziente Verwaltung kann die Bestandserfassung bereitstellen. Die Daten werden im Innendienst bedarfsgerecht ausgewertet. Leitungen oder Rohre können mit Parametern und Eigenschaften versehen werden.

Digitalisierung Ihres Gebäudebestandes!

Die durch 3D-Laserscanning gewonnen Vermessungsdaten liefern umfassende Informationen für die Analyse und Verwaltung von Immobilien. Die Detaildichte ist besonders hoch, die Daten können vielfältig ausgewertet werden.

Durch Verwendung geeigneter Software kann die registrierte Punktwolke so dargestellt werden, dass eine Bearbeitung von beliebig festgelegten Ebenen ermöglicht wird. Im obigen Beispiel ist die Projektion einer  Gebäudefassade auf eine festgelegte Ebene zu erkennen.

Mit Hilfe dieser Funktion lässt sich eine sogenannte Ansicht effizient ableiten. Dazu werden Linien oder andere geometrische Objekte erzeugt, welche später in einem CAD-Programm zu einer Ansicht zusammengefügt werden.

3D-Laserscanner

Bestandsdokumentation mittels 3D-Laserscanner für eine effektive Planung und Verwaltung

Effiziente und vollständige Datenerhebung

Effiziente und vollständige Datenerhebung

Verformungsgerechtes und vollständiges Aufmaß mit allen Details. Winkeltreue Modellierung. Ermittlung von realen Mauerstärken und Wandverhältnissen. Unzugängliche Bereiche - wie etwa ein Dachstuhl - können mit geeignetem Werkzeug vermessen werden.

Daten können direkt ausgewertet werden, es ist keine Nacherfassung notwendig - daher ist der Einsatz dieser Methode regelmäßig Kostengünstiger als vergleichbare Verfahren.

Ergänzung weiterer Sensoren

Ergänzung weiterer Sensoren

Für Ansichten oder Schnitte ist die vollständige Erfassung von Dächern oft notwendig. Hierfür können spezielle Drohnen zusätzlich eingesetzt werden.

Zur Qualitätssicherung, aber auch für die Überführung der Daten in ein bestimmtes Koordinaten- oder Höhensystem, werden Tachymeter- und GNSS-Sensoren eingesetzt.

Die Kombination der Sensoren erfordert im Außendienst eine gesonderte Vorbereitung.

Teilautomatisierte Ableitung

Teilautomatisierte Ableitung

Nach Auswertung und Registrierung der Punktwolke wird diese in geeigneter Software verarbeitet. Hierfür wird die Punktwolke in Teile zerlegt - moderne Software ermöglicht das Ableiten von Horizontal- und Vertikalschnitten.

Horizontalschnitte in den Geschossen Erlauben das Ableiten von Grundrissen. Die Form der Innen- und Außenwände wird teilautomatisiert erfasst, Schritt für Schritt wird aus der Punktwolke der Grundriss zusammengesetzt.

Je nach Anforderung werden in den Geschossen verschiedenen Höhenpunkte erzeugt. Treppen und ähnliche Bauteile wie Fenster können modelliert werden.

Aktueller Plansatz

Aktueller Plansatz

Die erarbeiteten Pläne (Grundrisse, Schnitte, Ansichten) werden im PDF- sowie DWG-Datenformat übergeben. Die DWG-Dateien können in verschiedenen CAD-Softwarelösungen zur Weiterverarbeitung importiert werden.

Weiterhin ist der Export von Punktwolken sowie 360-Grad-Panorama-Fotos möglich. Die Daten können beispielsweise mit der Software Leica TruView (kostenfrei) analysiert werden.

Nach Absprache kann auch ein 3D-Modell im IFC-Format (Scan to BIM) abgeleitet werden.

Bestandsdokumentation mittels 3D-Laserscan

Virtuelle Rekonstruktion und Präsentation für durchgreifende Planung

Definition der Aufgabe

Gemeinsam legen wir die erforderliche Genauigkeit der Planzeichnungen fest, aus der sich die gewünschte Auflösung der Punktwolke ableiten lassen. So wissen wir genau, wie präzise gearbeitet werden muss, was den Aufwand im Außendienst bestimmt. Außerdem klären wir, welche Bauteile in welcher Detailstufe erfasst werden sollen. Abschließend bleibt festzulegen, ob die Punktwolke farbig sein soll und ob ein spezielles Lage- oder Höhensystem berücksichtigt werden muss.

Außendienst am Bestand

Einsatz der 3D-Laserscanner: die Instrumente werden in dem Objekt eingesetzt - sämtliche Bereiche, welche digitalisiert werden sollen, sind zu vermessen. Weiterhin müssen die Standpunkte untereinander verknüpft werden. Vorab werden sogenannte "Targets" installiert, um fehlerhafte Verknüpfungen zu verhindern. Ergänzend sind Messungen mittels Tachymeter oder GNSS-Sensor notwendig. Eine Qualitätssicherung vor Ort erfolgt mittels Tablet.

Fertigstellung

Virtuellen Rekonstruktion auf Grundlage der bereinigten Punktwolke, Anfertigung der Pläne und Zeichnungen entsprechend Auftrag.

Abgabe der Ergebnisse.

Registrierung der Messdaten

Unsere Vermessungstechnik ermöglicht die virtuelle Rekonstruktion von Gebäuden. Zunächst ist vorbereitend die Registrierung der 3D-Scans erforderlich. Hierbei zeigt sich, wie genau im Außendienst gearbeitet worden ist. Zur weiteren Verwendung ist es erforderlich, die Punktwolke vor dem Export zu bereinigen. Hierbei werden Reflektionen oder sonstige Störungen händisch eliminiert. Aus Gründen des Datenschutzes kann es notwendig sein, Gesichter oder Autokennzeichen unkenntlich zu machen.

Wir beraten Sie gerne

Sie haben Fragen zur Bestandsvermessung? Wir helfen Ihnen gerne weiter!

mehr über uns

Häufige Fragen zur Bestandsvermessung

Wir antworten:

Wie wird die Bestandsvermessung durchgeführt und welche Messgeräte kommen dabei zum Einsatz?

Was ist eine Bestandsvermessung und warum ist sie wichtig für die Erstellung von Grundrissen und Ansichten?

Was sind die Kostentreiber bei der Erstellung von Bestandsplänen und wie kann ich die Konsten meines Projektes kontrollieren?

Was versteht man unter Bestandsplänen und -modellen und warum sind sie für mein Bauprojekt wichtig?

Magazin

Vermessungstechnik in Aktion: Einblicke in unsere erfolgreich umgesetzten Projekte!

Drohne Aussichtsturm

Drohnenvermessung eines Aussichtsturms: Die Lösung für beeindruckende 3D-Modelle!

zum Beitrag
Drohnenvermessung

Drohnenvermessung nach Standardszenario (STS)

zum Beitrag

Erdmassenberechnung auf einer Großbaustelle

zum Beitrag
dji-drohnen

Herzlich willkommen in unserem Drohnenhangar!

zum Beitrag
Laserscanning eines Schachts

Präzises Laserscanning zur effizienten Bestandsvermessung von Schachtanlagen

zum Beitrag
Denkmalschutz: Vermessung am Rheinturm in Zons enthüllt faszinierende Details durch 3D-Laserscanning

Vermessung am Rheinturm in Zons enthüllt faszinierende Details durch 3D-Laserscanning

zum Beitrag
FG Dormagen

Vermessung einer Fußgängerzone

zum Beitrag

Vermessung einer historischen Brücke

zum Beitrag
Vermessung eines historischen Vierkanthofes

Vermessung eines historischen Vierkanthofes

zum Beitrag

Anwendungsfälle

Präzise Vermessungslösungen für komplexe Anforderungen!

Wohn- und Mietflächenermittlung

Wohn- und Mietflächenermittlung

zum Beitrag
Vermessung von Schächten

Vermessung von Schächten

zum Beitrag
Bestandsvermessung zur Ableitung von Grundrissen u. Ansichten

Bestandsvermessung zur Ableitung von Grundrissen u. Ansichten

zum Beitrag
Ausbau von Photovoltaik

Ausbau von Photovoltaik

zum Beitrag
Erstellung Digitaler Zwillinge (Scan to BIM)

Erstellung Digitaler Zwillinge (Scan to BIM)

zum Beitrag
Denkmalschutz

Denkmalschutz

zum Beitrag

Aktuelles

Folgt uns für spannende Einblicke: